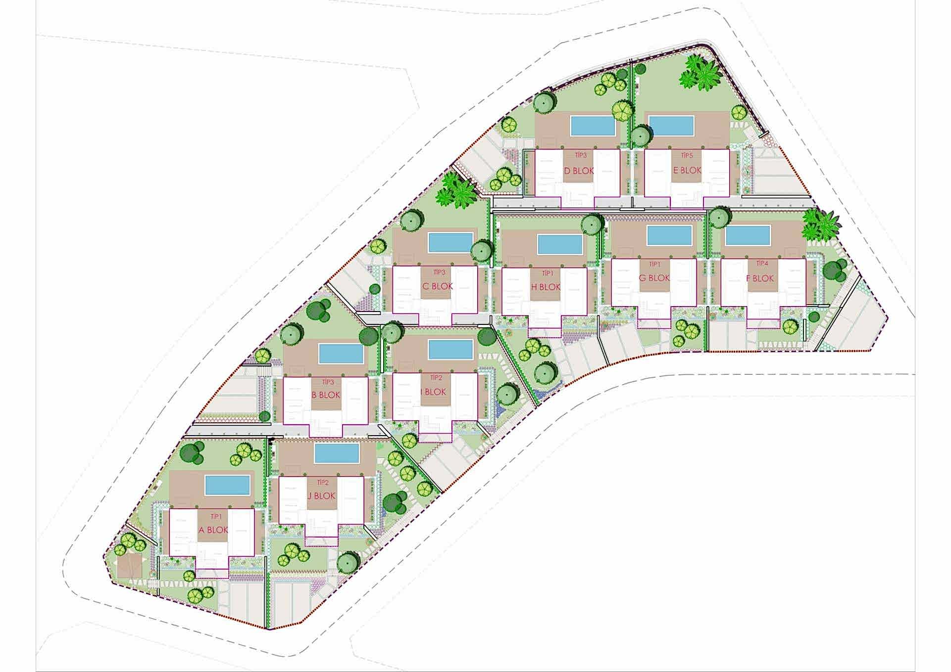
PROJE ADI
Gift Hebil
İŞVEREN
HB Group
İŞİN ADI
Peyzaj uygulama projelerinin çizilmesi.
Konum
Bodrum, Muğla.










Resim4
Resim3
Resim2
Resim1
Ekran görüntüsü 2026-02-23 125900
PLAN.JPG
hebil_render_0014
hebil_render_0004
hebil_render_0003
hebil_render_0000









